Spezielle Immobilie

SPEZIELLE IMMOBILIE
Lofts | Altbauwohnungen | Gewerbe | Mehrfamilienhäuser

Zwei Penthouses im Graefekiez einzeln oder zusammengelegt mit riesigem Dachgarten

Objektdaten

Adresse:10967 Berlin

Objekttypen:Wohnung

Objekt ID:2820809

Zimmeranzahl:4.0

Wohnfläche (ca.):165.91 m²

Schlafzimmer:2

Badezimmer:2

Heizungsart:Gas

Baujahr:2025

Provisionspflichtig:ja

Käufer­provision:3,57% inkl. MwSt.
Die Provision ist fällig und verdient mit Beurkundung des Kaufvertrages. Wir haben einen provisionspflichtigen Maklervertrag mit dem Verkäufer in gleicher Höhe abgeschlossen.

Kaufpreis: 1.650.000 EUR

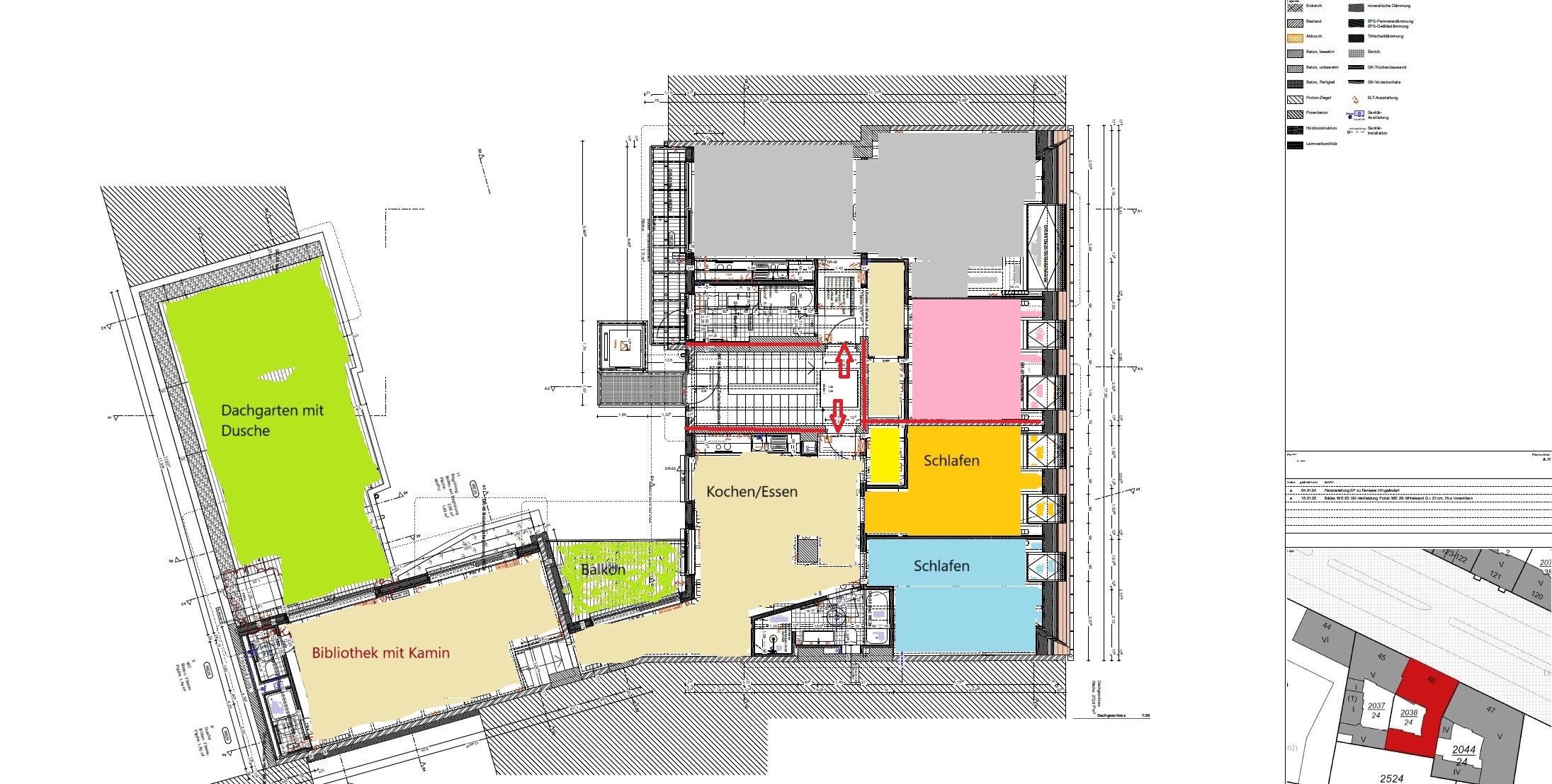
Grundriss
Anlagen / Links
Kontakt

Ansprechpartner:

Telefon:+491791442818

Mobil:

E-Mail:info@spezielle-immobilie.de

Kontaktformular

Ich habe die Allgemeinen Geschäftsbedingungen gelesen und akzeptiert.*
Ich willige in die Verarbeitung meiner Daten zum Zweck der Bearbeitung meiner Anfrage ein und habe die Datenschutzerklärung gelesen.*

Map
Objektbeschreibung
Beschreibung

Stuckaltbau 1900


Abriss und Neuaufstockung 2024/2025, der Grundriss-Plan weist 2 Wohnungen aus, die selbstverständlich baulich auch zusammengelegt werden können, beide Wohnungen sind noch verfügbar

Old stucco building 1900

Detailed text description to follow

Demolition and new extension 2024/2025, the floor plan shows 2 flats, which can of course also be combined structurally

Sonstige Angaben

Besichtigungen können jederzeit vorgenommen werden

Ausführender Architekt Martin Wahl / Berlin



die größere Wohnung mit dem Dachgarten wird etwa 1,7 Mio. kosten, die kleinere mit Dachbalkon etwa 1,1 Mio. und dann zusammengelegt werden können. Der Eigentümer ist bereit in geringem Maße zu verhandeln

Alternativen ähnliche Lagen:


- Winsstr. 145 qm Prenzlberg>expose
- Berlin Mite nahe Charite 85 qm 1,1 Mio. >expose

Lage

triple AAA

Die Urbanstr. ist schalltechnisch nicht vernehmbar

triple AAA

Urbanstr. is not audible in terms of noise

Nach oben scrollen