Spezielle Immobilie

SPEZIELLE IMMOBILIE
Lofts | Altbauwohnungen | Gewerbe | Mehrfamilienhäuser

ruhiges Dach Treptower Park Maybachufer Terrasse + Lift, 3 Raum

Objektdaten

Adresse:12435 Berlin

Objekttypen:Wohnung

Objekt ID:10009

Zimmeranzahl:3.0

Wohnfläche (ca.):76.0 m²

Schlafzimmer:2

Badezimmer:1

Heizungsart:Gas

Baujahr:

Letzte Modernisierung:2020

Provisionspflichtig:ja

Käufer­provision:3,57% inkl. MwSt.

Kaufpreis: 625.000 EUR

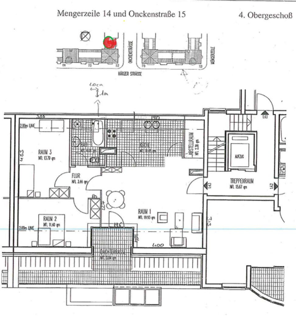
Grundriss
Anlagen / Links

Kontakt

Ansprechpartner:

Telefon:+491791442818

Mobil:

E-Mail:info@spezielle-immobilie.de

Kontaktformular

Ich habe die Allgemeinen Geschäftsbedingungen gelesen und akzeptiert.*
Ich willige in die Verarbeitung meiner Daten zum Zweck der Bearbeitung meiner Anfrage ein und habe die Datenschutzerklärung gelesen.*

Map
Objektbeschreibung
Beschreibung

Diese charmante Dachgeschosswohnung mit 3 Zimmern steht zum Verkauf und bietet eine Wohnfläche von knapp 80 Quadratmetern. Die letzte umfassende Modernisierung fand im Jahr 2020 statt, sodass die Wohnung in einem hervorragenden Zustand ist. Der Boden ist mit elegantem Parkett ausgestattet, das für eine warme und einladende Atmosphäre sorgt.

Ein besonderes Highlight dieser Immobilie ist der vorhandene Aufzug, der einen barrierefreien Zugang zur Wohnung ermöglicht. Zusätzlich verfügt die Wohnung über einen Kellerraum für zusätzlichen Stauraum.

Die Einbauküche ist im Kaufpreis enthalten und bietet somit sofortige Nutzungsmöglichkeit. Die monatlichen Hausgeldkosten belaufen sich auf 387 €, was eine transparente und planbare Nebenkostenstruktur gewährleistet.

Die Wohnung befindet sich in Berlin und ist mit einer Zentralheizung ausgestattet, die mit Gas betrieben wird, um eine effiziente und komfortable Wärmeversorgung zu garantieren.

Nutzen Sie die Gelegenheit, in dieser modernen und gut ausgestatteten Dachgeschosswohnung Ihr neues Zuhause zu finden.

Sonstige Angaben

Mindestpreis 600.000 € inkl. Einbauküche und inkl. TG-Stellplatz

Lage

Lagebeschreibung:

Dieses attraktive Anwesen befindet sich in einer hervorragenden Lage in Berlin und bietet seinen Bewohnern eine optimale Verbindung zu den wichtigsten Verkehrsknotenpunkten. Nur 2 Minuten Fußweg entfernt finden Sie eine Haltestelle des öffentlichen Personennahverkehrs (ÖPNV), die eine bequeme und schnelle Anbindung an die gesamte Stadt gewährleistet.

Nach oben scrollen