Spezielle Immobilie

SPEZIELLE IMMOBILIE
Lofts | Altbauwohnungen | Gewerbe | Mehrfamilienhäuser
Lade...
Bild der Immobilie
Bild der Immobilie
Bild der Immobilie

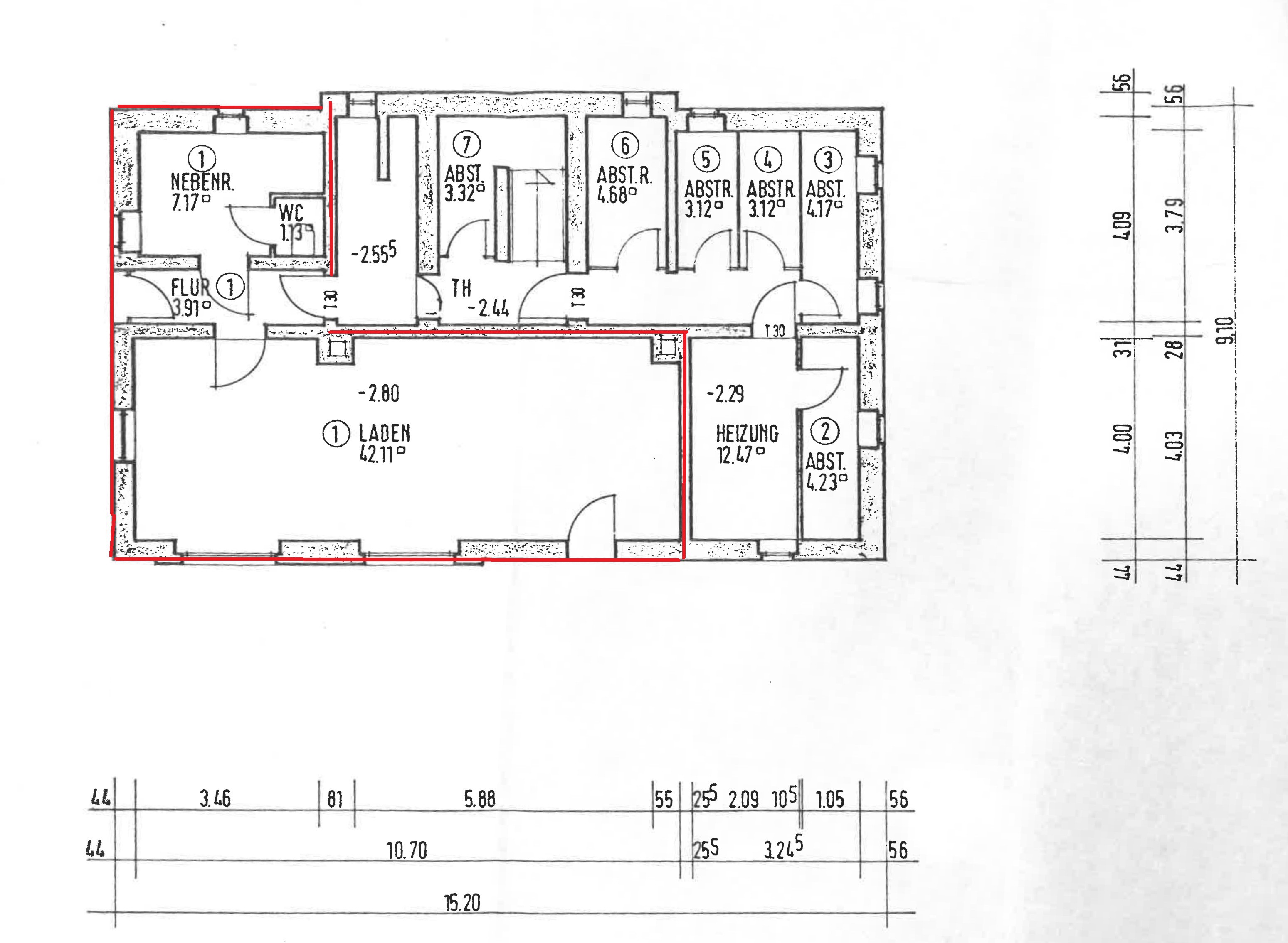
Laden trocken, Schaufenster, beheizt, WC

Objektdaten

Adresse:08304 Schönheide

Objekttypen:Einzelhandel

Objekt ID:4959829

Zimmeranzahl:2.0

Baujahr:

Provisionspflichtig:nein

Käufer­provision:

Kaufpreis: 8.100 EUR

Grundriss
Anlagen / Links

Kontakt

Ansprechpartner:

Telefon:+491791442818

Mobil:

E-Mail:info@spezielle-immobilie.de

Kontaktformular

Ich habe die Allgemeinen Geschäftsbedingungen gelesen und akzeptiert.*
Ich willige in die Verarbeitung meiner Daten zum Zweck der Bearbeitung meiner Anfrage ein und habe die Datenschutzerklärung gelesen.*

Map
Objektbeschreibung
Beschreibung

Unaufälliges kleines Mehrfamilienhaus alle Wohnungen vermietet, der Laden hat Schaufenster Kunsstoff mit Themopenverglasung, Heizkörper, WC

seit 2025 ist die Gaszentralheizung erneuert worden, Hausrücklagen 5.500 €

Lage

Alte Auerbacher Str. 28 Schönheide

Nach oben scrollen