Spezielle Immobilie

SPEZIELLE IMMOBILIE
Lofts | Altbauwohnungen | Gewerbe | Mehrfamilienhäuser

Köln innerhalb des Ringes

Objektdaten

Adresse:50672 Köln

Objekttypen:

Objekt ID:10012

Baujahr:

Provisionspflichtig:ja

Käufer­provision:7,14% inkl. MwSt.

Kaufpreis: keine Angabe

Anlagen / Links

Kontakt

Ansprechpartner:

Telefon:+491791442818

Mobil:

E-Mail:info@spezielle-immobilie.de

Kontaktformular

Ich habe die Allgemeinen Geschäftsbedingungen gelesen und akzeptiert.*
Ich willige in die Verarbeitung meiner Daten zum Zweck der Bearbeitung meiner Anfrage ein und habe die Datenschutzerklärung gelesen.*

Map
Objektbeschreibung
Beschreibung

OBJEKTDATEN Baujahr: 1900
Sanierung: 2001 (und laufend)
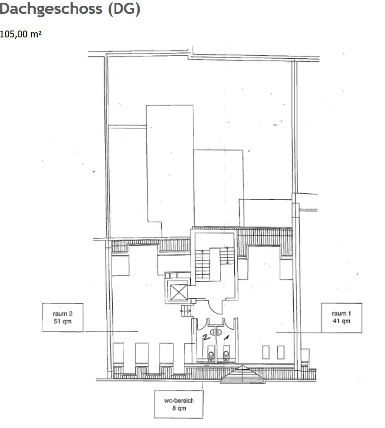
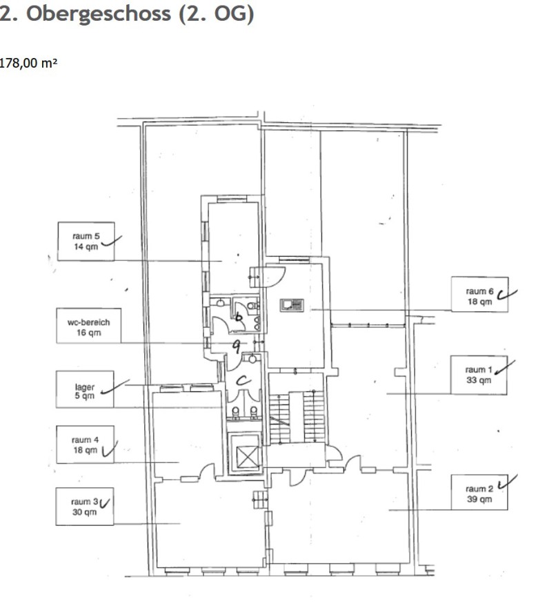
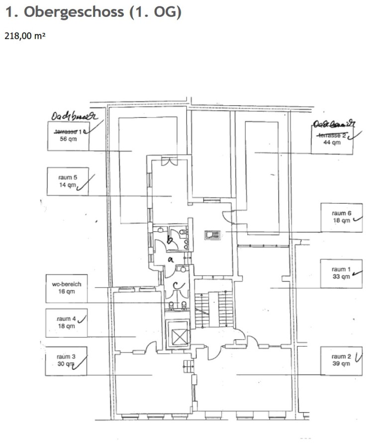
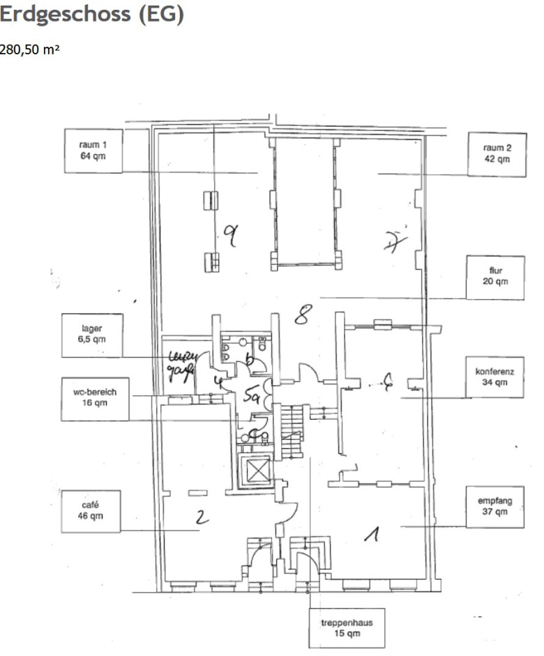
KAUFPREIS 6 Etagen - 1.177 m²: 8,00 Millionen Euro
MIETZINS Marktmiete: ab 22,00 €/ m²
Nebenkosten-Heizkosten: 2,00 €
Nebenkosten-Betriebskosten: 2,00 €
ENERGIEAUSWEIS Dieses Gebäude steht unter Denkmalschutz und ist von der
Ausweispflicht ausgenommen.
AUSSTATTUNG • Büro: Bodenbelag – Parkettboden
• Beleuchtung
• Decke – keine Abhangdecke, teilweise Stuck
• Verkabelung/EDV
• Kühlung/Lüftung
• Aufteilung
• Kabel Führung – Bodenkabelkanäle mit Bodentanks
• Teeküche – eingerichtet zur gemeinschaftlichen Nutzung
• Personen/Lastenaufzug
OBJEKTBESCHREIBUNG Die außergewöhnliche Architektur mit Jugendstildetails wurde durch
moderne und transparente Elemente ergänzt und ergeben zusammen ein
einzigartiges und gut durchdachtes Gesamtkonzept. Sehr hohe und helle
Loftflächen sorgen für eine unverwechselbar angenehme
Arbeitsatmosphäre. Zusätzlich können alle Mieter im Haus die
Konferenzräume im Erdgeschoss oder im ansprechend sanierten
Gewölbekeller nutzen. Eine kleinteilige Vermietung ist möglich durch die
zentrale Anlaufstelle im 1. OG mit Teeküche, Toiletten und attraktiver
Dachterrasse zum Innenhof.

Lage

Nach oben scrollen