Spezielle Immobilie

SPEZIELLE IMMOBILIE
Lofts | Altbauwohnungen | Gewerbe | Mehrfamilienhäuser

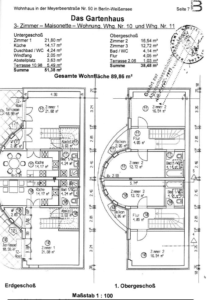
kleines Haus in Haus Wohnung nr. 11VERKAUFT Maisonette ca. 90 m² 3 Zimmer- Gestalten Sie den Garten selbst

Objektdaten

Adresse:13088 Berlin

Objekttypen:Haus

Objekt ID:9995

Zimmeranzahl:3.0

Wohnfläche (ca.):90.0 m²

Schlafzimmer:2

Badezimmer:2

Heizungsart:Gas

Baujahr:2005

Provisionspflichtig:ja

Käufer­provision:3,57% inkl. MwSt.

Kaufpreis: 499.000 EUR

Grundriss
Anlagen / Links

Kontakt

Ansprechpartner:

Telefon:+491791442818

Mobil:

E-Mail:info@spezielle-immobilie.de

Kontaktformular

Ich habe die Allgemeinen Geschäftsbedingungen gelesen und akzeptiert.*
Ich willige in die Verarbeitung meiner Daten zum Zweck der Bearbeitung meiner Anfrage ein und habe die Datenschutzerklärung gelesen.*

Map
Objektbeschreibung
Beschreibung

Doppelhaushälfte Charakter mit Gartenfläche zum Selbstgestalten, Baujahr 2000, vermietet

Sonstige Angaben

Besichtigungen sind nach Absprache möglich,

Lage

Gartenlage

die Meyerbeerstr. ist wunderbar erschlossen, 2 Stationen mit der Tram zur Ringbahn oder 15 Minuten zum Alexanderplatz, Pkw- Parkplätze in der Strasse ebenso immer vorhanden

Nach oben scrollen