Spezielle Immobilie

SPEZIELLE IMMOBILIE
Lofts | Altbauwohnungen | Gewerbe | Mehrfamilienhäuser
Lade...
Bild der Immobilie
Bild der Immobilie
Bild der Immobilie
Bild der Immobilie

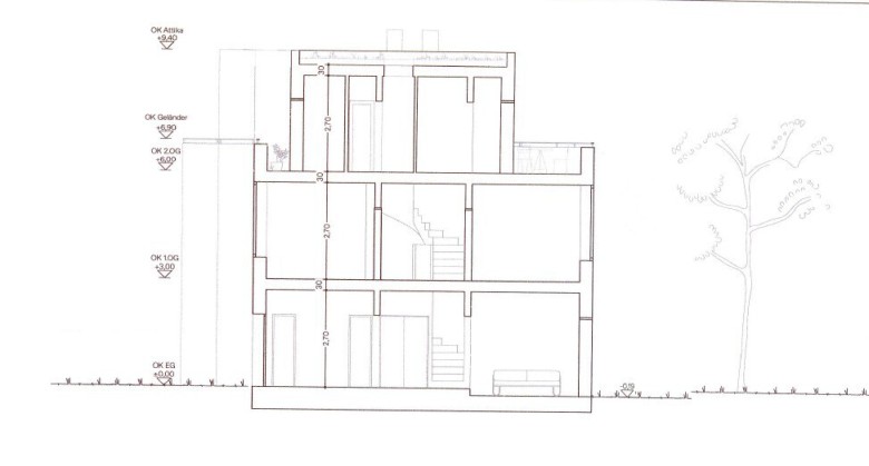
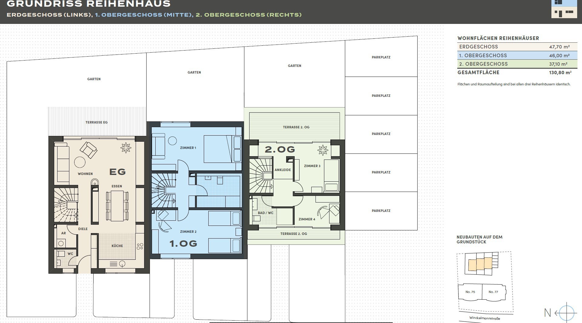
Einfamilien-Architekten-Haus Dreispänner 6,80m breit, 9,50 lang 3 Etagen je 2,70m

Objektdaten

Adresse:12487 Berlin

Objekttypen:Haus

Objekt ID:10568

Zimmeranzahl:5.0

Wohnfläche (ca.):130.0 m²

Schlafzimmer:4

Badezimmer:2

Heizungsart:Erdgas schwer

Baujahr:2025

Provisionspflichtig:ja

Käufer­provision:3,57% inkl. MwSt.
Die Provision ist fällig und verdient mit Beurkundung des Kaufvertrages. Wir haben einen provisionspflichtigen Maklervertrag mit dem Verkäufer in gleicher Höhe abgeschlossen.

Kaufpreis: 735.000 EUR

Grundriss
Kontakt

Ansprechpartner:

Telefon:+491791442818

Mobil:

E-Mail:info@spezielle-immobilie.de

Kontaktformular

Ich habe die Allgemeinen Geschäftsbedingungen gelesen und akzeptiert.*
Ich willige in die Verarbeitung meiner Daten zum Zweck der Bearbeitung meiner Anfrage ein und habe die Datenschutzerklärung gelesen.*

Map
Objektbeschreibung
Beschreibung

optisch ansprechende moderne Kubus-Häuser, EG+OG+Staffelgeschoss, jeweils mit eigenem kleinen Garten, die Häuser werden jeweils versetzt angeordnet, damit die Privatsphäre gewahrt ist.

Baubeginn Februar 2026, Bauzeit 12 Monate, Zahlung bei Übergabe an den Kunden

Sonstige Angaben

KfW 55

1 Eckhaus reseviert

Lage

Winckelmannstraße 75, 12487 Berlin-Treptow-Köpenick, Ortsteil Johannisthal, drei Townhouses in zweiter Reihe errichtet. Die Ortslage Winckelmannstr. ist sehr beliebt bei Familien mit Kindern, da Schulen und Kitas ausreichend fußläufig erreichbar sind.

Nach oben scrollen