Spezielle Immobilie

SPEZIELLE IMMOBILIE
Lofts | Altbauwohnungen | Gewerbe | Mehrfamilienhäuser
Lade...
Bild der Immobilie
Bild der Immobilie
Bild der Immobilie
Bild der Immobilie
Bild der Immobilie

Objektdaten

Adresse:10997 Berlin

Objekttypen:Buero Praxen

Objekt ID:4803752

Baujahr:

Stellplätze:2

Provisionspflichtig:ja

Käufer­provision:5,95% inkl. MwSt.

Kaufpreis: 795.000 EUR

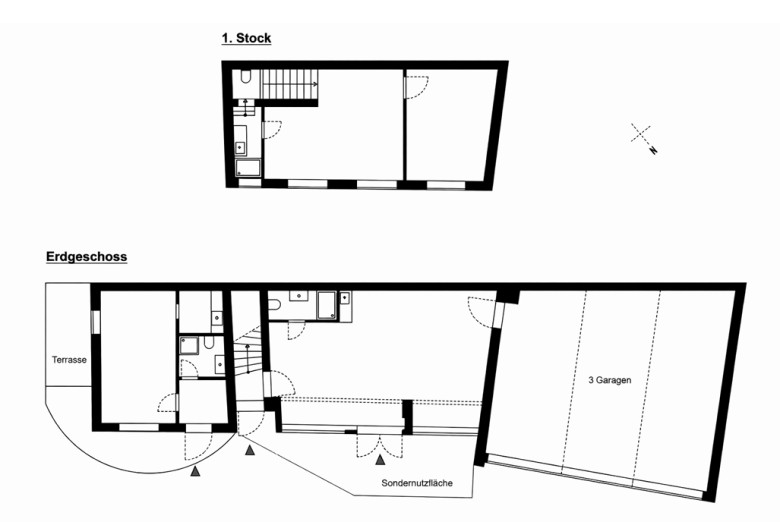
Grundriss
Anlagen / Links

Kontakt

Ansprechpartner:

Telefon:+491791442818

Mobil:

E-Mail:info@spezielle-immobilie.de

Kontaktformular

Ich habe die Allgemeinen Geschäftsbedingungen gelesen und akzeptiert.*
Ich willige in die Verarbeitung meiner Daten zum Zweck der Bearbeitung meiner Anfrage ein und habe die Datenschutzerklärung gelesen.*

Map
Objektbeschreibung
Beschreibung

Eigenes Haus mit vielseitigen Nutzungsmöglichkeiten im gefragten Wrangelkiez in Kreuzberg.

Die Remise bietet Raum für kreative Konzepte, Wohnen oder Arbeiten. Mit einer Gesamtfläche von ca. 152 m² auf zwei Etagen bietet das Gebäude außergewöhnlich viele Möglichkeiten zur individuellen Gestaltung und Nutzung.

Die drei Garagen bieten hervorragendes Ausbaupotenzial – so lassen sich rund 50 m² zusätzliche Nutzfläche schaffen. Eine direkte Verbindung zur Remise ist bereits vorhanden.

Aktuell ist die Remise in mehrere Einheiten mit separaten Zugängen unterteilt, lässt sich jedoch einfach zu einer großzügigen Gesamteinheit verbinden. Ob als Atelier, Büro, Studio oder Wohn- und Arbeitskombination, dieses Objekt ist ein Ort für Menschen, die Freiraum schätzen und das Besondere suchen.

Die zentrale Lage mit hervorragender Anbindung im pulsierenden Herzen Kreuzbergs kombiniert urbanes Lebensgefühl mit ruhiger Hinterhofatmosphäre, ein seltener Ort mit echtem Berliner Charakter.

Lage

Der Wrangelkiez ist bekannt für seine bunte Mischung aus historischen Gebäuden und moderner Architektur, die ein einzigartiges Stadtbild schaffen. Hier leben Kunst und Kultur Hand in Hand mit einer pulsierenden Gastronomieszene. Ob trendige Cafés, angesagte Bars oder kulinarische Highlights aus aller Welt – hier ist für jeden Geschmack etwas dabei. Hier fühlen sich sowohl junge Singles und Paare als auch Familien wohl. Die zahlreichen Schulen, Kindergärten und Freizeiteinrichtungen in der Nähe machen diese Gegend zu einem idealen Wohnort für alle Lebensphasen.

Nach oben scrollen