Spezielle Immobilie

SPEZIELLE IMMOBILIE
Lofts | Altbauwohnungen | Gewerbe | Mehrfamilienhäuser

Berlin Kreuzberg Wrangelkiez

Objektdaten

Adresse:10997 Berlin

Objekttypen:Wohnung

Objekt ID:9994

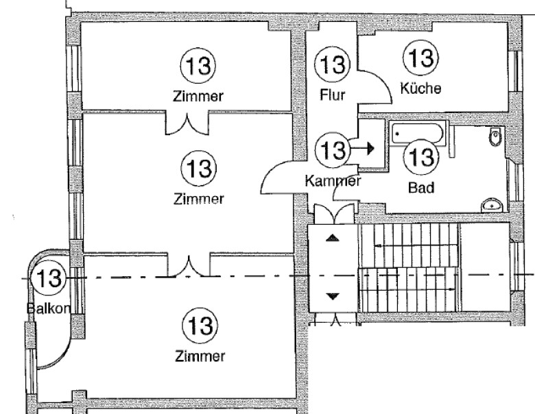
Zimmeranzahl:3.0

Wohnfläche (ca.):95.2 m²

Baujahr:

Provisionspflichtig:ja

Käufer­provision:4,57% inkl. MwSt.

Kaufpreis: 610.000 EUR

Anlagen / Links

Kontakt

Ansprechpartner:

Telefon:+491791442818

Mobil:

E-Mail:info@spezielle-immobilie.de

Kontaktformular

Ich habe die Allgemeinen Geschäftsbedingungen gelesen und akzeptiert.*
Ich willige in die Verarbeitung meiner Daten zum Zweck der Bearbeitung meiner Anfrage ein und habe die Datenschutzerklärung gelesen.*

Map
Objektbeschreibung
Beschreibung

gepflegter Altbau 1900, 2. OG Vorderhaus mit Bestandsbalkon nach Süd-West, Dielen, Stuck, historische Türen und Holzkaminofen, Gasetagenheizung

641/10.000 stel

Lage

mittlerweile autofreier Platz, keine Parkplätze aber auch kein Gehupe

Nach oben scrollen